Bouwjaar 1978
Perceeloppervlakte 138m2
Aantal slaapkamers 3
Soort Eengezinswoning
Inhoud 410 m3
Woonoppervlakte 110 m2

Omschrijving

Deze moderne eindwoning is sfeervol, instapklaar, heeft energielabel B, 3 slaapkamers en een achtertuin op het zuiden. Deze keurige gezinswoning staat op een perceel van 138 m² en is aan de voorzijde gelegen aan een rustige doodlopende straat met uitzicht op een groenstrook en brede sloot. De laatste jaren is de woning gemoderniseerd en is er o.a. een nieuwe badkamer en nieuwe keuken geplaatst, is er op de eerste verdieping HR++ beglazing geplaatst en is de zolder geïsoleerd. De achtertuin is gelegen op het zuiden en voorzien van sierbestrating met meerdere zitplekjes om te genieten van de zon of schaduw. Parkeren is mogelijk op het parkeerterrein direct achter de woning, speciaal voor de bewoners van de Weegbree. De woning is goed onderhouden, modern en sfeervol en een fijne gezinswoning, op loopafstand van het winkelcentrum en scholen.
Nieuwsgierig geworden maak dan snel een afspraak om te komen kijken.

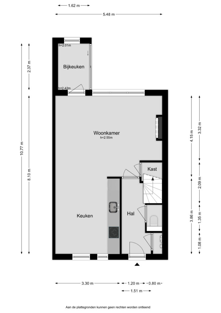
Indeling

Begane grond:

We leiden je graag alvast rond:
We betreden de woning via de voordeur en komen in de hal met meterkast, toilet, trapopgang en toegang tot de woonkamer. De woonkamer is sfeervol en voorzien van een tv-wand met inbouw sierhaard, welke achterblijft voor de nieuwe bewoners. Het grote raam aan de achterzijde zorgt voor natuurlijke lichtinval in de woonkamer. De open keuken bevindt zich aan de voorzijde, deze is voorzien van een nieuwe rechte keukenopstelling geplaatst in 2024 en voorzien van een koel-vriescombinatie, vaatwasser, combi-oven, inductie kookplaat en afzuigkap. Onder de trap is nog een ruime voorraadkast. Via de woonkamer is er toegang tot de bijkeuken, deze heeft een kunststof schuifpui welke toegang geeft tot de achtertuin op het zuiden met achterom. In de tuin staat nog een stenen berging.

Eerste verdieping:

De overloop geeft toegang tot de 3 slaapkamers en de moderne badkamer met douche, wastafel met meubel en 2e toilet. De vaste trap brengt ons naar de 2e verdieping.

Tweede verdieping:

De ruime zolder is in 2024 geïsoleerd, hier is het mogelijk een extra slaapkamer te realiseren, ruimte genoeg. Ook bevindt zich hier een aparte wasruimte met aansluiting voor de wasmachine en droger, tevens de cv-installatie.

Algemeen:

De woning is gebouwd in 1978 en geïsoleerd d.m.v. dak- en spouwisolatie en voorzien dubbel glas en HR++ beglazing (2023) in houten kozijnen (het kleine badkamerraam is nog enkel glas), in 2024 is er nog buitenom geschilderd. De schuifpui in de bijkeuken is van kunststof. De woning wordt verwarmd d.m.v. centrale verwarming, de HR-combiketel is van 2018 en eigendom. De vloeren in de gehele woning zijn betonvloeren afgewerkt met laminaat.

De Weegbree 14 in het kort:
– moderne eindwoning
– 138 m² perceeloppervlakte
– 110 m² woonoppervlakte
– sfeervol en instapklaar
– achtertuin op het zuiden met achterom
– energielabel B
– 3 slaapkamers, mogelijkheid voor 4
– moderne badkamer
– nieuwe keuken (2024)
– nieuwe bekleding op trap (2024)
– nieuwe laminaatvloer begane grond (2024)
– nieuwe HR++ beglazing voordeur en verdieping (2023)
– in 2024 buitenom geschilderd
– zolder in 2024 geïsoleerd
– op loopafstand van winkels en scholen

De woning staat in woonwijk De Greiden, een groene wijk met alle voorzieningen vlakbij, zoals scholen, een grote speeltuin en winkels naast de deur. Woonwijk de Greiden is een kindvriendelijke en populaire wijk voor gezinnen. De locatie is top, het centrum van Heerenveen en het treinstation zijn op fietsafstand en de A7 is op ca. 5 minuten rijden, wat De Greiden een fijne plek maakt om te wonen.

Ook enthousiast over de woning en de locatie maak dan snel een afspraak om te komen kijken.

Kenmerken

Soort woning Eengezinswoning, Hoekwoning
Bouwjaar 1978
Soort dak Zadeldak
Kozijnen Hout,

Woonoppervlakte 110 m2
Perceeloppervlakte 138 m2
Inhoud 410 m3

Berging Ja
Garage -
Energie label B
Verwarming CV-ketel
Warm water CV-ketel
CV Ketel HR-combiketel
Bouwjaar CV Ketel 2018
Isolatie Dak, Spouwmuur, Volledig geïsoleerd glas

Aantal kamers 4
Aantal slaapkamers 3
Aantal woonlagen 3

Ligging In woonwijk, Vlakbij snelweg, Vlakbij openbaar vervoer, Vlakbij school
Tuin Achtertuin
Ligging Zuid
]

Plattegrond

Vergelijkbare woningen

Bekijk onze vergelijkbare woningen!

Onze trots

Wat vinden de klanten van ons en onze werkwijze? Dat lees je bij de beoordelingen.